Rains Come Down and Dirt Washes Away
September 20, 2019
August 8, 2022


Each time it rains a little more dirt and rock are removed from the bottom of the ditch and more of the bank falls off into the ditch. These are from September 12, 2019

This photo show the depth of the ditch and the size of the concrete put in the ditch some years ago by the City of New Braunfels. When the city filled the ditch they pushed the flow and erosion back into the building envelope.
The fence in the top left of this photo is represented with the X’s and dashes on the lot Plat.
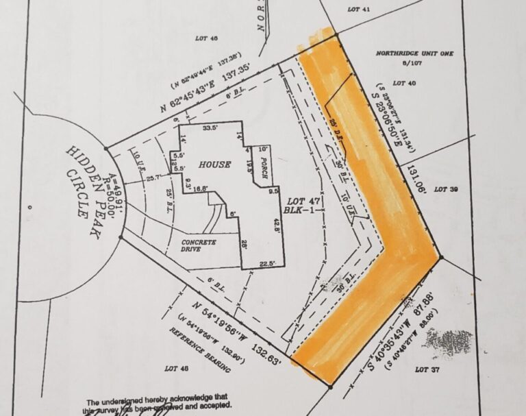
The building envelope begins 30 feet from the rear most property line.

The orange high-lighted is the easement for the drainage.
You can see how much of the back yard has bee rendered unusable, the distance between X’s and dashes to the high-lighted area.
- admin
- Quick and Fast May 10, 2022
- June 2021 June 29, 2021
- May 2021 May 31, 2021
- May Rains, Washed it Away May 30, 2020
- April Showers April 25, 2020